250-871-7766 sales@iconicid.ca

Multi Sections Plans

 

Think Modular! Homes starting from $145,850

Iconic 24′ Wide Multi Sections

Iconic Island Dwellings
Iconic Island Dwellings
Iconic Island dwellings
24' Sectional Standards

BC Meridian Sectional 24′ Wide 

Construction - Exterior

Average ground snow load: 80psf
2.25/12 roof pitch (0.82 interior pitch) @ 24”O/C
*Includes low-slop shingle application
15/32” roof sheathing
Residential, maintenance-free vinyl siding
Lifetime Warranty* shingles w/full underlayment
Tubular steel frame with hitch
Floor joists: 2×8 @ 16” O/C
3/8” exterior wall sheathing (glued & fastened)
Colored metal fascia & soffit
Triple M rigid ext. wall system w/ insulated header
Frost free exterior tap
Dedicated receptacle for heat tape at kitchen sink
23/32” floor sheathing (glued & fastened)
8’ walls (2×6 exterior / 2×4 interior)
Exterior house wrap

Construction - Insulation

6 mil vapor barrier Insulation:
Ceiling:  R-40 Flat  / R-35 Cathedral
Floor:      R-40
Walls:      R-22

Construction - Interior

½” stippled Gyproc ceiling
Vaulted ceiling – living room, dining room, kitchen & family room (plan specific)
Digital programable thermostat
Foam-back linoleum throughout (glued & rolled)

Construction - Gas, Electric & Plumbing

Convertible gas furnace with electronic ignition
Coil cavity under furnace
40 US gallon electric HWT
Plumbed for washer, wired for dryer
100-amp electric service panel
1-1/2” conduit from draw side of panel through floor
Main water shut-off inside home at kitchen sink

Construction - Doors & Ext. Lights

36” front and 32” rear exterior doors
White Mercer interior doors
32” utility room door
Flex coach light at all exterior doors
Exterior GFI receptacle at exterior doors

Distinctive Standard Features

Low E Argon windows & sills complete w/screens
1.5″ side eave with ridge venting
12″ front and rear overhang
Nail holes in trim filled
Cordless cellular blinds throughout
Surface-mount interior pot lights in kitchen, dinning room, living room, family room, walk-in pantries & walk-in closets
Continuous rod shelving in closet

Modern Crafted Kitchens
Stainless Steel 18cft fridge
Stanless Steel ceran-top range w/ SS range hood
Modular cabinets with adjustable shelving
Cabinet crown molding
Spacious pantry in kitchen (where applicable)
Flat panel PVC cabinet doors throughout
Laminate countertops with self-edge
Single-row subway tile backsplash
Tight weave pantry shelving
Chrome gooseneck faucet with spray
Contemporary Baths
De-humidistat on main bath fan, all other fans on separate switch
1-Piece smooth back oval tub/shower combination in ensuite (plan specific)
1-Piece smooth back tub/shower combination in main bath
Single-row subway tile backsplash at vanities

Think Modular!

Homes starting from $145,850

Iconic Island Dwellings BC2436-100C-3

BC2436-100-C-3

  • 24′ W x 36′ L
  • 864 Sqft
  • 2 Bedroom
  • 1 Bathroom
  • Washer/Dryer Hookups
  • Front Porch
Iconic Island Dwellings BC2438-101-C-3

BC2438-101-C-3

  • 24′ W x 38′ L
  • 912 Sqft
  • 2 Bedroom
  • 2 Bathroom
  • Washer/Dryer Hookups
  • Front Porch
Iconic Island Dwellings BC2440-101-C-3

BC2440-101-C-3

  • 24′ W x 40′ L
  • 960 Sqft
  • 3 Bedroom
  • 2 Bathroom
  • Utility Room
  • Washer/Dryer Hookups
Iconic Island Dwellings BC2440-102-C-3

BC2440-102-C-3

  • 24′ W x 40′ L
  • 960 Sqft
  • 3 Bedroom
  • 2 Bathroom
  • Utility Room
  • Washer/Dryer Hookups
Iconic Island Dwellings BC2448-103-2

BC2448-103-C-2

  • 24′ W x 48′ L
  • 1152 Sqft
  • 2 Bedroom
  • 2 Bathroom
  • Utility Room
  • Washer/Dryer Hookups
Iconic Island Dwellings BC2450-109-C-3

BC2450-109-C-3

  • 24′ W x 50′ L
  • 1200 Sqft
  • 3 Bedroom
  • 2 Bathroom
  • Washer/Dryer Hookups
Iconic Island Dwellings BC2452-101-C-3

BC2452-101-C-3

  • 24′ W x 52′ L
  • 1248 Sqft
  • 3 Bedroom
  • 2 Bathroom
  • Utility Room
  • Washer/Dryer Hookups
Iconic Island Dwellings BC2456-101-C-3

BC2456-101-C-3

  • 24′ W x 56′ L
  • 1344 Sqft
  • 2 Bedroom
  • 2 Bathroom
  • Utility Room
  • Washer/Dryer Hookups
Iconic Island Dwellings BC2470-233-C-3

BC2470-233-C-3

  • 24′ W x 70′ L
  • 1680 Sqft
  • 3 Bedroom
  • 2 Bathroom
  • Utility Room
  • Washer/Dryer Hookups
Iconic Island Dwellings BC2470-234-C-3

BC2470-234-C-3

  • 24′ W x 70′ L
  • 1680 Sqft
  • 3 Bedroom
  • 2.5 Bathroom
  • Pantry 
  • Utility Room
  • Washer/Dryer Hookups
Iconic Island Dwellings BC2470-235-C-3

BC2470-235-C-3

  • 24′ W x 70′ L
  • 1680 Sqft
  • 3 Bedroom
  • 2 Bathroom
  • Family Room 
  • Flex Room 
  • Utility Room
  • Washer/Dryer Hookups
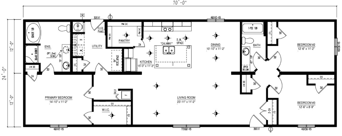
Iconic Island Dwellings BC2470-236-C-4

BC2470-236-C-4

  • 24′ W x 70′ L
  • 1680 Sqft
  • 3 Bedroom
  • 2 Bathroom
  • Pantry
  • Utility Room
  • Washer/Dryer Hookups

Iconic 27′ Wide Multi Sections

Iconic Island Dwellings
Iconic Island Dwellings
Iconic Island Dwellings
27' Sectional Standards

BC Meridian Sectional 27′ Wide

Construction - Exterior

Average ground snow load: 80psf
2.25/12 roof pitch (0.82 interior pitch) @ 24” o/c
*Includes low-slope shingle application
15/32” roof sheathing
Residential, maintenance-free vinyl siding
Lifetime Warranty* shingles w/full underlayment
Tubular steel frame with hitch
Floor joists: 2 x 8 @ 16” O/C
3/8” exterior wall sheathing (glued & fastened)
Colored metal fascia & soffit
Triple M rigid ext. wall system w/ insulated header
Frost-free exterior tap
Dedicated receptacle for heat tape at kitchen sink
23/32” floor sheathing (glued & fastened)
8′ walls (2×6 exterior / 2×4 interior)

Construction - Insulation

6 mil vapor barrier Insulation:
Ceiling:  R-40 Flat / R35 Cathedral
Floor:  R-40
Walls:  R-22

Construction - Interior

½” stippled Gyproc ceiling
Vaulted ceiling – living room, dining room, kitchen & family room (plan specific)
Digital programable thermostat
Foam-back linoleum (fully glued & rolled)

Construction - Gas, Electric & Plumbing

Convertible gas furnace with electronic ignition
Coil cavity under furnace
40 US gallon electric HWT
Plumbed for washer, wired for dryer
100-amp electric service panel
1-1/2” conduit from draw side of panel through floor
Main water shut-off inside home at kitchen sink

Construction - Doors & Ext. Lights

36” front and 32” rear exterior doors w/ screens
White Mercer interior doors
32” utility room door
Flex coach light at all exterior doors
Exterior GFI receptacles at all exterior doors

Distinctive Standard Features
Low E Argon windows & sills complete w/ screens
10” accent boards around standard windows (front and curbside)
Nail holes in trim filled
Cordless cellular blinds throughout
Surface-mount interior pot lights in kitchen, dining room, living room, family room (plan specific), walk-in pantries & walk-in closets
Continuous rod shelving in closet
Modern Crafted Kitchens

Stainless Steel ceran-top range w/ SS range hood
Stainless Steel 18cft fridge
Modular cabinets with adjustable shelving
Cabinet crown molding
Flat panel PVC cabinet doors throughout
Laminate countertops
Single-row subway tile backsplash
Tight weave pantry shelving
Chrome gooseneck faucet with spary

Contemporary Baths

De-humidistat on main bath fan, all other fans
1-Piece smooth back oval tub/shower
1-Piece smooth back tub/shower combination
Chrome single-lever vanity faucet
Single-row subway tile backsplash at vanities

Think Modular!

Homes starting from $141,598

Iconic Island Dwellings BC2740-100-C-3

BC2740-100-C-3

  • 27′ W x 40′ L
  • 1080 Sqft
  • 3 Bedroom
  • 2 Bathroom
  • Utility Room
  • Washer/Dryer Hookups
Iconic Island Dwellings BC2744-102-C-3

BC2744-102-C-3

  • 27′ W x 44′ L
  • 1188 Sqft
  • 2 Bedroom
  • 2 Bathroom
  • Utility Room
  • Washer/Dryer Hookups
Iconic Island Dwellings BC2748-102-C-4

BC2748-102-C-4

  • 27′ W x 48′ L
  • 1296 Sqft
  • 3 Bedroom
  • 2 Bathroom
  • Utility Room
  • Washer/Dryer Hookups
Iconic Island Dwellings BC2748-104-C-3

BC2748-104-C-3

  • 27′ W x 48′ L
  • 1296 Sqft
  • 2 Bedroom
  • Flex Room
  • 2 Bathroom
  • Utility Room
  • Washer/Dryer Hookups
Iconic Island Dwellings BC2748-105-C-3

BC2748-105-C-3

  • 27′ W x 48′ L
  • 1296 Sqft
  • 3 Bedroom
  • 2 Bathroom
  • Utility Room
  • Washer/Dryer Hookups
Iconic Island Dwellings BC2750-100-C-3

BC2750-100-C-3

  • 27′ W x 50′ L
  • 1350 Sqft
  • 3 Bedroom
  • 2 Bathroom
  • Utility Room
  • Washer/Dryer Hookups
Iconic Island Dwellings BC2752-102-C-3

BC2752-102-C-3

  • 27′ W x 52′ L
  • 1404 Sqft
  • 3 Bedroom
  • 2 Bathroom
  • Utility Room
  • Washer/Dryer Hookups
Iconic Island Dwellings BC2756-104-C-3

BC2756-104-C-3

  • 27′ W x 56′ L
  • 1274 Sqft
  • 3 Bedroom
  • 2 Bathroom
  • Utility Room
  • Washer/Dryer Hookups
Iconic Island Dwellings BC2756-105-C-4

BC2756-105-C-4

  • 27′ W x 56′ L
  • 1512 Sqft
  • 3 Bedroom
  • 2 Bathroom
  • Family Room
  • Utility Room
  • Washer/Dryer Hookups
Iconic Island Dwellings BC2756-107-C-3

BC2756-107-C-3

  • 27′ W x 66′ L
  • 1512 Sqft
  • 3 Bedroom
  • 2 Bathroom
  • Dining Room
  • Utility Room 
  • Washer/Dryer Hookups
Iconic Island Dwellings BC2760-100-C-3

BC2760-100-C-3

  • 27′ W x 60′ L
  • 1620 Sqft
  • 3 Bedroom
  • 2 Bathroom
  • Utility Room
  • Washer/Dryer Hookups
Iconic Island Dwellings BC2764-100-C-3

BC2764-100-C-3

  • 27′ W x 64′ L
  • 1728 Sqft
  • 3 Bedroom
  • 2 Bathroom
  • Flex Room
  • Utility Room
  • Washer/Dryer Hookups
Iconic Island Dwellings BC2766-101-C-3

BC2766-101-C-3

  • 27′ W x 66′ L
  • 1782 Sqft
  • 3 Bedroom
  • 2 Bathroom
  • Dining Room
  • Utility Room
  • Washer/Dryer Hookups
Iconic Island Dwellings BC2772-100-C-3

BC2772-100-C-3

  • 27′ W x 72′ L
  • 1944 Sqft
  • 3 Bedroom
  • 2.5 Bathrooms
  • Dining Room
  • Family Room
  • Utility Room
  • Washer/Dryer Hookups
Iconic Island Dwellings BC2776-100-C-3

BC2776-100-C-3

  • 27′ W x 76′ L
  • 2052 Sqft
  • 4 Bedroom
  • 2 Bathrooms
  • Dining Room
  • Front & Rear Foyer
  • Utility Room
  • Washer/Dryer Hookups
Iconic Island Dwellings BC3064-101-C-3

BC3064-101-C-3

  • 30′ W x 64′ L
  • 1920 Sqft
  • 3 Bedroom
  • 2 Bathrooms
  • Dining Room
  • Utility Room
  • Washer/Dryer Hookups
Iconic Island Dwellings BC3064-102-C-3

BC3064-102-C-3

  • 30′ W x 64′ L
  • 1920 Sqft
  • 3 Bedroom
  • 2 Bathrooms
  • Dining Room
  • Family Room
  • Utility Room
  • Washer/Dryer Hookups
Iconic Island Dwellings BC3066-100-C-3

BC3066-100-C-3

  • 30′ W x 66′ L
  • 1980 Sqft
  • 3 Bedroom
  • 2 Bathrooms
  • Dining Room
  • Utility Room
  • Washer/Dryer Hookups
Iconic Island Dwellings BC3068-100-C-3

BC3068-100-C-3

  • 30′ W x 68′ L
  • 2040 Sqft
  • 4 Bedroom
  • 2 Bathrooms
  • Dining Room
  • Utility Room
  • Washer/Dryer Hookups
Iconic Island Dwellings BC3070-100-C-2

BC3070-100-C-2

  • 30′ W x 70′ L
  • 2100 Sqft
  • 4 Bedroom
  • 2 Bathrooms
  • Dining Room
  • Family Room
  • Utility Room
  • Washer/Dryer Hookups
Iconic Island Dwellings BC3070-101-C-2

BC3070-101-C-2

  • 30′ W x 70′ L
  • 1770 Sqft
  • 2 Bedroom
  • 2 Bathrooms
  • Dining Room
  • Utility Room
  • Washer/Dryer Hookups

Please send us a message below of the floor plan that best suits you.

Iconic Island Dwellings

Think Modular!

Homes starting from $145,850

Send Us A Message

Receive Call Back

Receive Email

3 + 6 =

Iconic Island Dwellings 2021If you require an after hour appointment, we will gladly schedule a time to meet at your convenience

PHONE

250-871-7766

ADDRESS

1355 Comox Rd
Courtenay, BC V9N 3P8

EMAIL

sales@iconicid.ca

HOURS

Mon – Fri 9 – 5
Sat – 10-4
Sun – by appointment only
*Excludes Holidays
Call for availability